Interiorismo singular en Japón
01 de septiembre de 2011


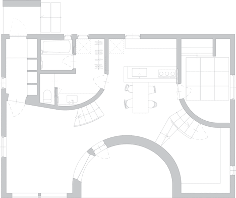
Proyectada por el arquitecto Japones Yukiko Nadamoto en 2011, esta vivienda que se encuentra en Iwate, Japón, ha sido resuelta siguiendo las premisas de los propietarios de contar con un espacio común de doble altura, sala de estar, cocina y comedor, todo ello conectado con una terraza abierta al jardín y tres estancias independientes a su vez ajustadas a las necesidades de los 4 habitantes de la vivienda. Este es el reportaje fotográfico de Seiya Miyamoto y los planos de cómo se ha resuelto de una forma brillante.









